Промисловий котел на твердому паливі Candle MAX 100 кВт
Котел Candle MAX - це сталевий, високоефективний твердопаливний котел промислового призначення. Підходить для всіх типів споруд великої площі (будинків, комерційних споруд, СТО, теплиць та ін.).
Теплообмінник котла має форму паралелепіпедного типу, має подвійні стінки, посилений ребрами жорсткості і розділений перегородками з теплоносієм. Товщина внутрішньої стінки - 6 мм, зовнішньої - 4 мм. Котел МАХ оснащений димовими каналами. Паливо засипається вручну через засипні дверцята, де після розпалу, процесом горіння керує мікропроцесорний регулятор. Він безперервно контролює температуру котла і на підставі цього визначає стан котла. В процесі роботи, мікропроцесорний регулятор за допомогою вентилятора, насичує камеру згоряння повітрям.
Переваги котлів Candle MAX 100 кВт:
- Сталь теплообмінника товщиною 6 мм;
- Високоефективний теплообміннк з великою площею теплоз’єму;
- Має розширені завантажувальні двері;
- Наявность додаткових дверцях для чистки теплообмінника;
- Тривалість горіння на одній закладці від 18 годин;
- Гарантія на герметичність теплообмінника 36 місяців;
Комплект поставки котла MAX 100 кВт:
- До комплектації котла входить:
- Котел МАХ в зборі;
- Інструкція по експлуатації котла;
- Мікропроцесорний регулятор (модель залежить від комплектації);
- Інструкція по експлуатації мікропроцесорного регулятора;
- Вентилятор– кількість залежить від моделі котла;
- Термометр;
- Попільник.
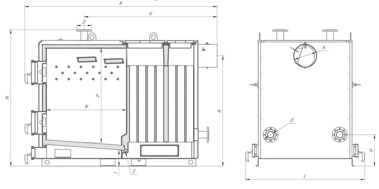
Конструкція котла Кендл Макс та габарити в розрізі:




- Внутрішній корпус котла
- Стінка водяної сорочки
- Теплоносій
- Теплоізоляція котла
- Зовнішня обшивка котла
- Камера згорання
- Колосники
- Зольник
- Теплообмінник
- Комин
- Поворотний шибер димоходу
- Ручка шибера
- Засипні дверцята
- Ревізійні дверцята
- Вигрібні дверцята
- Ручка відкривання дверки
- Люк чистки теплообмінника
- Люки видалення нагару
- Механічний термометр
- Муфти під’єднання магістралі опалення
- Муфта зливу води з котла
- Канали подачі повітря
- Повітряні форсунки
- Транспортна петля