Пелетний котел Candle Pell Uni 25 кВт
Котел Candle PELL UNI - це котел для ефективного спалювання пелет та палива з дерева. Товщина сталі теплообмінника 6 мм.
Котел має конструкцію, в основі якого високоефективний теплообмінник, що характеризується видовженою нагріваючою колоною з комплектом труб димових каналів та ефективною камерою згорання.
Котел забезпечує свою ефективність та високий ККД за рахунок підвищеної температури в зоні згорання. Також це мінімізує викид в атмосферу забрудненого диму.
Поверхня теплообмінника очищується за рахунок вбудованих спіралей.
Механізм автоматичного спалювання палива представлений сучасним європейським пальником, внутрішнім шнеком та спеціальним механізмом видалення попелу, що утворюється внаслідок спалювання. Пальник укомплектований теном розпалювання та фотоелементом для контролю полум’я. Паливо для спалювання подається самостійно за допомогою спірального шнека з бункера, що розташований збоку котла.
Топка пальника виконана з жаростійкої котлової сталі, обладнана рухомими решітками, що вмикаються періодично під час його роботи для прочистки. Рухома конструкція решітки забезпечує ефективне усунення спаленої пелетт з топки. Пальник обладнаний вентилятором, що забезпечує подачу повітря для спалювання палива.
Безпосередньо над пальником є місце де можуть розташовуватись чавунні колосники, які виконують роль решітки для спалювання крупно кускової деревини (чавунні колосники не входять в стандартну комплектацію котла та замовляються окремо).
По необхідності бункер та пальник можна розташувати як злівої так і з правої сторони котла. Бункер має достатньо великий об’єм, що дає можливість не досипати паливо на протязі 4-6 днів.
Бункер для палива має модульну технологію, оснащену системою для змішування і перегортання палива. Пелета в пальник подається шнеком, який приводить в рух моторедуктор. Інший шнек вмонтований в пальник та переміщує паливо в топку. У разі відсутності відбору тепла, пальник автоматично гаситься. Перед наступним розпалом, автоматичний очищувач підготовлює топку пальника до роботи. Автоматика керує роботою пальника, системою подачі палива, системою перемішування палива та системою ЦО.
В котлі PEL UNI вмонтований вентилятор димових газів, представлений димососом, який знаходиться з задньої сторони котла. Він створює розрідження в котлі. Завдяки цьому розрідженню всмоктується вторинне і первинне повітря. Вентилятор обертається з перемінною швидкістю і має електронне управління. Швидкість обертання вентилятора залежить від температури в камері згорання котла.
Комплект поставки котла Кендл Pell Uni 25 кВт:
- Котел UNI в зборі;
- Інструкція по експлуатації котла UNI;
- Мікропроцесорний регулятор Tech ST*-880 zPID;
- Інструкція по експлуатації мікропроцесорного регулятора Tech ST-880 zPID*;
- Вентилятор WPA 1172/120*;
- Регулятор спалювання «Honeywell» FR 124*;
- Датчик димових газів zPID*;
- Термометр;
- Попільник;
- Люк;
- Ніжки для котла 4 шт.
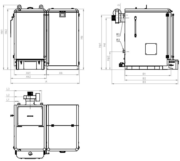
Конструкція котла в розрізі та габаритні розміри:



- Корпус котла;
- Двері обслуговування;
- Двері обслуговування;
- Попільник;
- Шнек для видалення попелу;
- Боров;
- Кнопка увімкнення/вимкнення;
- Дверка бункера;
- Кришка для завантаження пелети;
- Панель керування;
- Ручка очистки димових газів;
- Кришка для обслуговування;
- Вхідний/вихідний патрубок;
- Димосос;
- Пальник;
- Шнек подачі пелети;
- Рушта чавунні*;
- Силікатно-магнезитова плита;
- Спіраль для очистки димових каналів;
- Блок керування.










